| Basse saison | Moyenne saison | Haute saison |
|---|---|---|
| € | € | € |
AppartementRéf.
3011440046
Réf.
34927
NICE (06000)
Quartier des Baumettes, idéalement bien situé à proximité immédiat de la faculté de droit,commerces, tramway et mer.
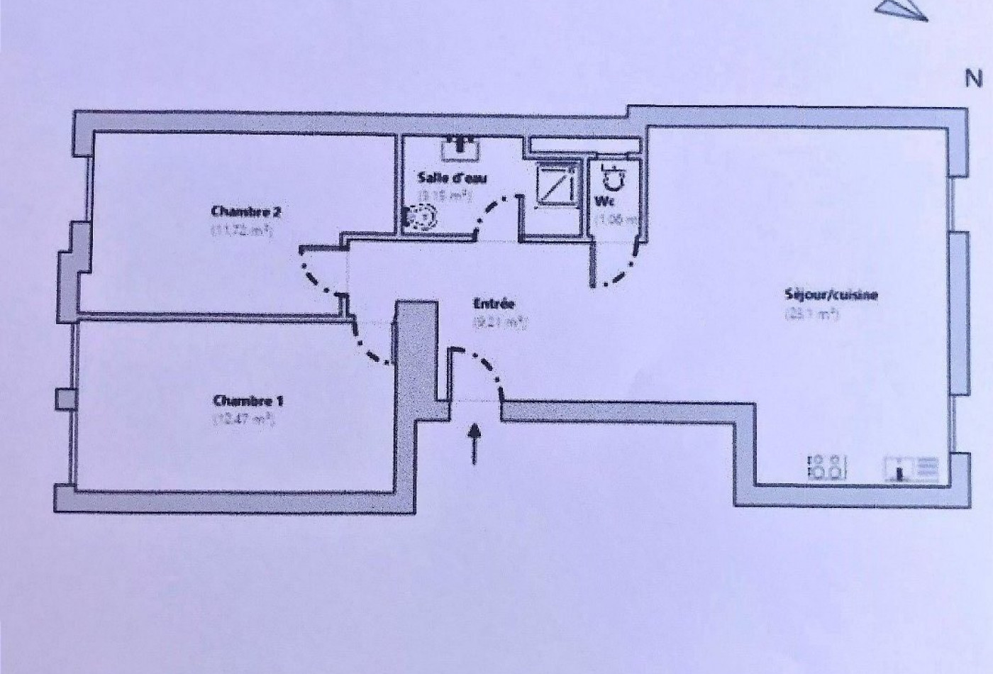
Vends appartement de 3 pièces de 60,71 m2 loi carrez
traversant, lumineux situé au 2 ème étage sans ascenseur.
Il se compose: d'une entrée, 2 chambres, salle d'eau, wc indépendant, cusine ouvrant sur le séjour;
cet appartemen ne posséde pas de parking, de cave, ni de balcon mais il compense largement par sa localisation privilégiée.
Ne manquez pas cette opprotunité dans un quartier trés prisé !
pour plus d'informations ou pour organiser une visite, n'hésitez pas à nous contacter au 06.11.60.14.65
Prix de vente 269 000 € Prix TTC et Honoraires à charge vendeur TTC Montant estimé des dépenses annuelles d'énergie pour un usage standard : entre 750 € et 1 050 € par an. Prix moyens des énergies indexés au 23/02/2022 (abonnement compris). DPE : D GES : B Pour visiter et vous accompagner dans votre projet, contactez Isabelle NAVARRO 06 11 60 14 65
Selon l'article L.561.5 du Code Monétaire et Financier, pour l'organisation de la visite, la présentation d'une pièce d'identité vous sera demandée.
Les informations sur les risques auxquels ce bien est exposé sont disponibles sur le site Géorisques : www.georisques.gouv.fr
Cette présente annonce a été rédigée sous la responsabilité éditoriale de Isabelle NAVARRO agissant sous le statut d’agent commercial immatriculé au Ville du greffe : GRASSE sous le numéro RSAC N° 815 152 525 auprès de la SAS IMMO RESEAU au capital de 10 000€ - Réseau national immobilier sur internet, 44 Allée des Cinq Continents - 44120 VERTOU - RNE NANTES 519 718 886. Carte professionnelle T et G n° CPI 3002 2018 000 024 971 CCI de Nantes-Saint-Nazaire (44) ; Garantie par GALIAN – 89 rue de la Boétie - 75008 Paris N°171379G pour 120 000€ pour T. Assurance responsabilité civile professionnelle par GALIAN n° de police 120 137 405
(réf. 34927) - Le professionnel garantit et sécurise votre projet immobilier
* Honoraires charge vendeur.






















