| Basse saison | Moyenne saison | Haute saison |
|---|---|---|
| € | € | € |
AppartementRéf.
85002112861
Réf.
32768
CAVALAIRE SUR MER (83240)
Appartement 2 pièces avec terrasse – Viager occupé – Cavalaire-sur-Mer!
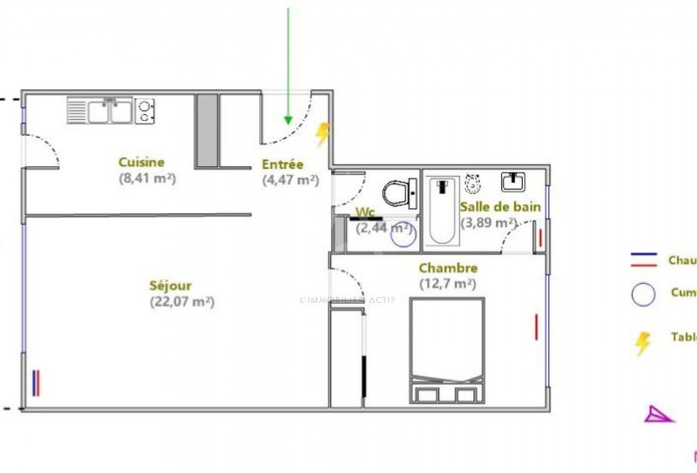
Dans un quartier calme et résidentiel, découvrez cet agréable 2 pièces de 54 m², situé au 1er étage d’une résidence bien entretenue, à proximité des commerces et des plages.
Agencement optimal :
Un séjour lumineux de 22 m² ouvrant sur une belle terrasse de 11 m² exposée sud-est, idéale pour vos moments de détente
Une cuisine indépendante parfaitement équipée
Une chambre spacieuse de 12 m² avec placard
Une salle de bains, un WC séparé
Climatisation réversible
En annexes :
Une cave privative
Une place de parking libre au sein de la résidence
Conditions de la vente en viager occupé :
Type de viager : Occupé
Bouquet : 115 000 €
Rente mensuelle : 900 €
Occupante : Femme de 85 ans
Opportunité patrimoniale : Idéal pour un investisseur souhaitant constituer un patrimoine à prix réduit, sans aléas locatifs ni gestion. Le viager occupé permet une acquisition progressive avec une décote importante.
Intéressé ? Contactez-moi pour recevoir la fiche détaillée et organiser une visite.
Contactez votre Agent AXO - L'immobilier Actif au 06 78 18 51 57, Tom DUMOULIN (EI) Agent Commercial RSAC 852.085.661 Fréjus. Plus d'informations sur www.axo.immo (réf. 85002112861).
Honoraires : 15 000 € TTC (6 %) inclus charge acquéreur (250 000 € hors honoraires).
Les informations sur les risques auxquels ce bien est exposé sont disponibles sur le site Géorisques : https://www.georisques.gouv.fr/
Bien soumis au statut juridique de la copropriété. Nb de lot :10. Charges annuelles de copropriété (Montant moyen annuel quote-part du budget prévisionnel vendeur) : 1200.00 €.
* Honoraires : 6% TTC inclus charge acquéreur (250 000 € hors honoraires).






















