| Basse saison | Moyenne saison | Haute saison |
|---|---|---|
| € | € | € |
MaisonRéf.
74027721
Réf.
268
RUMILLY (74150)
MAISON INDIVIDUELLE DE 100M2 + GARAGE SUR UN TERRAIN DE 342M2.
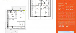
Sur la commune de RUMILLY, idéalement situé, nous vous proposons sur ce joli terrain, une villa individuelle de 87.76m² habitables (98.43m² utiles) comprenant:
Au rez-de-chaussée :
- Une belle pièce de vie (Entrée/séjour/ cuisine) donnant sur l’extérieur
- Un WC
A l’étage :
- 3 chambres dont une avec dressing
- Une salle de bain avec WC
- Un dressing séparé
Vous profiterez également d’un garage.
Concernant les point techniques de la maison :
- Chauffage au sol assuré par pompe à chaleur au RDC, et radiateurs à l'étage
- Menuiseries double vitrage PVC
Prix comprenant le terrain frais d'agence inclus, la maison, l'assurance "Dommages-ouvrage", l'estimation des V.R.D
Prix hors frais de notaire, peintures intérieures, parquets et cuisine.
Contactez Mme Gaëlle JANIN au 06 70 74 72 25, votre agent commercial n° RSAC 881873749, elle vous recommandera une visite sur ce bien et vous accompagnera dans votre projet immobilier.
(Perspectives non contractuelles)
* Honoraires charge vendeur.









