| Basse saison | Moyenne saison | Haute saison |
|---|---|---|
| € | € | € |
MaisonRéf.
0900423612
Réf.
17568
FOURQUEVAUX (31450)
EXCLUSIVITE : BELLE LAURAGAISE SUR TERRAIN ARBORE
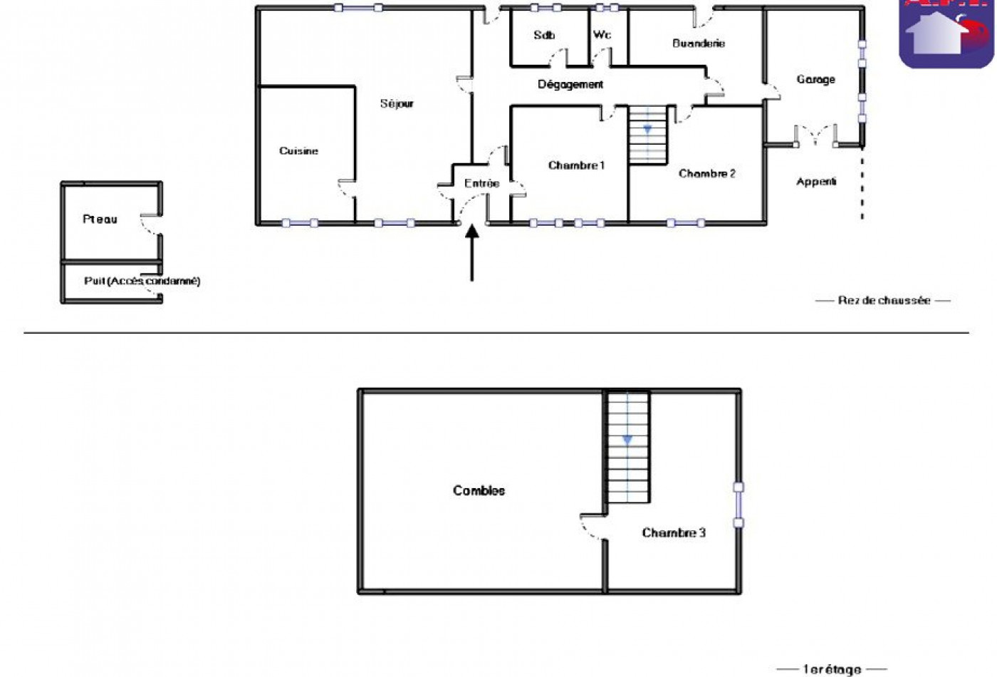
Rare ! A Fourquevaux, charmant village historique où il fait bon vivre avec ses écoles et commerces de proximité ! A seulement 20 minutes de Labège Innopôle. Venez découvrir, en exclusivité cette belle Lauragaise typique de la région, de type 4 pièces et de 110m² habitables environ. Elle offre une entrée, un séjour traversant de 33m2, une cuisine séparée à aménager à votre goût, 2 grandes chambres en rez-de-chaussée de 18 et 23m², un grand cellier-buanderie, une salle de bains et un WC séparé. A l’étage, le grenier a été en partie aménagé pour offrir une 3ème chambre mansardée. Garage attenant de 15m² envrion avec rochelle de rangement. Vous profiterez de ses extérieurs arborés et ombragés de près de 1500m² clôturés. A visiter sans tarder. Bien vendu libre de toute occupation. Menuiseries en double vitrage, chauffage par convecteurs électriques, toiture en très bon état et façades refaites, assainissement par tout-à-l’égout et fibre optique raccordée.
AGENCE PYRENEES IMMOBILIER - Votre Conseillère Elodie 05.62.710.192
* Honoraires charge vendeur.






















