| Basse saison | Moyenne saison | Haute saison |
|---|---|---|
| € | € | € |
Maison à construireRéf.
7400235446
Réf.
250505
SEVRIER (74320)
Sur la commune de SEVRIER, nous vous proposons un projet de Terrain + Maison avec permis de construire obtenu et levé de tout recours (démarage travaux trés rapide).
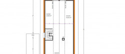
Sur un terrain de 877m², venez construire votre maison d'une surface de 183.16m² habitable, avec au rez de chaussée, une grande pièce de vie de + 60m² ouverte sur la terrasse et le jardin, une buanderie et un cellier.
A l'étage : Une suite parentale avec dressing et salle d'eau, 2 chambres, une salle de bains (douche et baignoire) et un WC séparé.
Dans les combles, en fonction de vos besoins vous pourriez créer 1 ou 2 chambres supplémentaires, permettant de profiter d'un maximum de 5 chambres.
En annexe, vous disposerez d'un garage et de 3 stationnements extérieurs.
Inclus dans les Prestations : Volets roulants BSO, domotique, plancher chauffant rdc + etage, parquet et carrelage, ...
Il restera à votre charge l'aménagement des placards, les meubles des salles d'eau, la cuisine et la piscine 3x6m.
980 000€ Terrain + Maison (Frais de Notaire + VRD + Etudes de sols + Frais annexes, compris dans le prix)
Les informations sur les risques auxquels ce bien est exposé sont disponibles sur le site Géorisques : www.georisques.gouv.fr
* Honoraires charge vendeur.

















