| Basse saison | Moyenne saison | Haute saison |
|---|---|---|
| € | € | € |
BureauRéf.
6900410182
Réf.
5860
SAINT DIDIER AU MONT D'OR (69370)
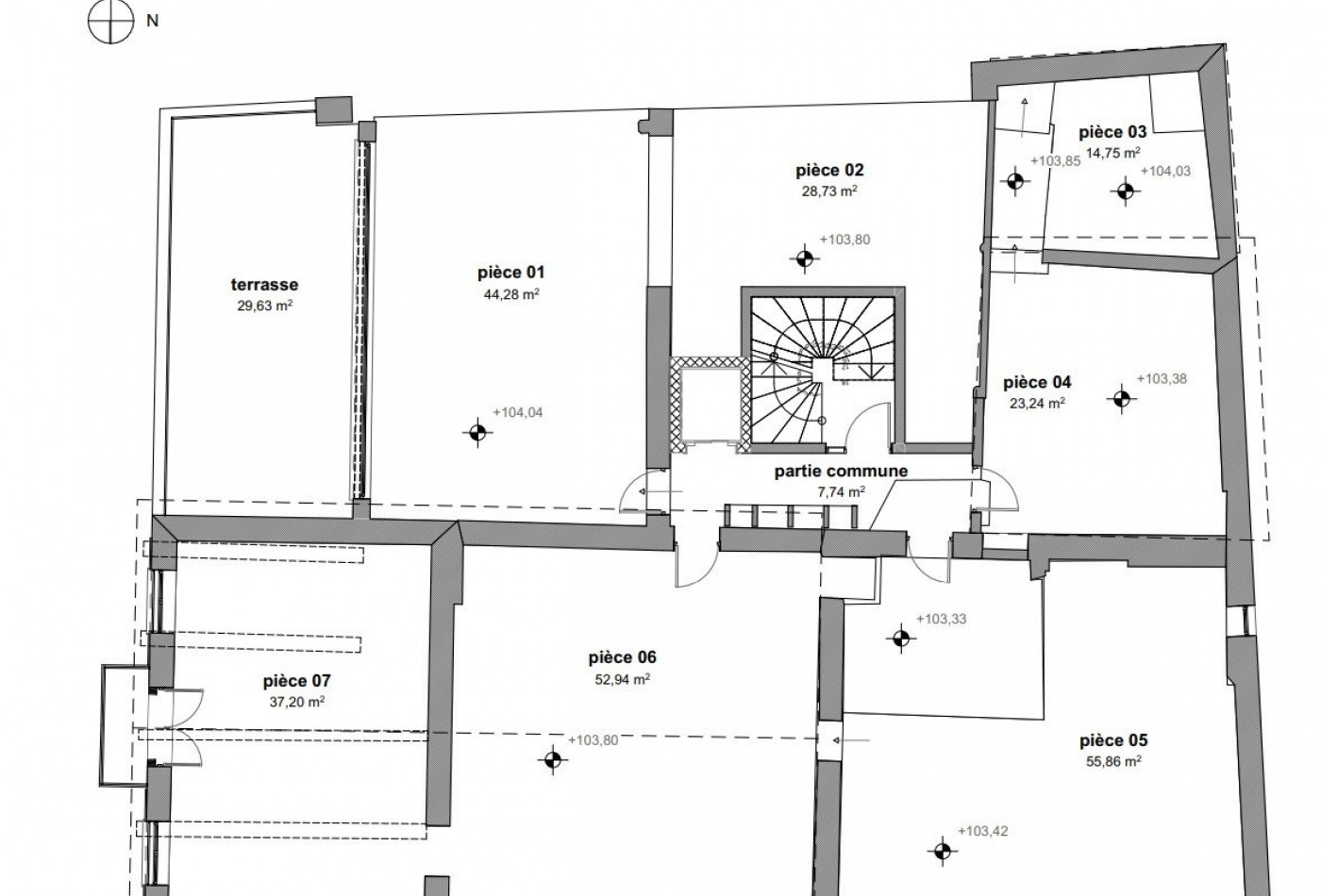
Idéalement placé dans le centre de St-Didier-au-mont-d'or, au 1er étage avec ascenseur d'un immeuble d'habitation restructuré en usage mixte, Casarèse vous propose un plateau de 257m² à aménager pour vos bureaux, commerce ou activité de services à la clientèle (salle sport, profession médicale, architecte, bureau d'études, expert-comptable...). Surface divisible à partir de 100 m². Arrivées eau, electricité, télécom en attente.
Les parties communes de cet immeuble de standing seront refaites : facades, couverture, menuiseries extérieures, espaces communs intérieurs.
Local vélo
Faibles charges (ascenseur, ménage des communs)
Livraison fin 2ème trimestre 2027.
Prestation complémentaire fin de travaux possible sur demande.
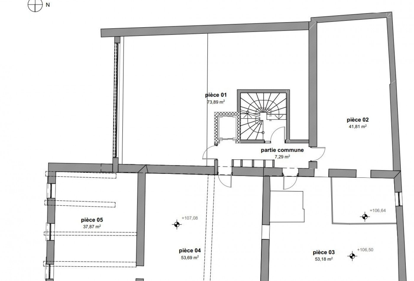
Un second plateau de 260 m² au 2ème étage est également à la vente.
Loïc PAPILLON - Tél : 06 83 86 17 07 - Agent commercial en immobilier (EI). Immatriculé au registre spécial des agents commerciaux. Ville du greffe : LYON. RSAC N° 809 056 138 - Réseau Casarèse. Mandat N° 5860. D'autres biens sur www casarese com !
Les informations sur les risques auxquels ce bien est exposé sont disponibles sur le site Géorisques : www.georisques.gouv.fr.









