| Basse saison | Moyenne saison | Haute saison |
|---|---|---|
| € | € | € |
AppartementRéf.
0602118518
Réf.
1158
VALBONNE (06560)
A Valbonne, au coeur de la Métropole Sophia-Antipolis, à 40 minutes de Nice, 24 kilomètres de l'aéroport et 12 kilomètres de Cannes.
L'équipe Déclic Immo 06 vous propose cet appartement neuf - livraison au 1er semestre 2027.
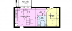
Cet appartement au 1er étage d'un immeuble de 2 étages offre :
- Un espace de vie lumineux grâce à de larges baies vitrées,
- Une cuisine sera a créer au gré des goûts et envies de chacun,
- Une chambre équipée d'un placard,
- Une salle d'eau avec sèche-serviettes et meuble vasque design,
- Un balcon de 7,50 m2 environ
Les atouts :
- A quelques minutes à pied du coeur de village,
- Climatisation réversible dans toutes les pièces,
- Prestations de qualité,
- Isolation performante,
- Aménagements extérieurs verdoyants
Réf 1158. DECLIC IMMO 06
Les informations sur les risques auxquels ce bien est exposé sont disponibles sur le site Géorisques : www.georisques.gouv.fr.
Annonce proposée et rédigée sous la responsabilité éditoriale de BRANDL Virginia - 06 67 31 80 73
Agent commercial RSAC N° 924 797 046 Ville du greffe : GRASSE
Bien soumis au statut juridique de la Copropriété.
Nb de lots : 57.
Charges annuelles de copropriété (Montant moyen annuel quote-part du budget prévisionnel vendeur) : en cours
Pas de procédure en cours.
Prix TTC et Honoraires à charge vendeur TTC
Surface CARREZ : 42,09 m2
* Honoraires charge vendeur.









