| Basse saison | Moyenne saison | Haute saison |
|---|---|---|
| € | € | € |
AppartementRéf.
3114586989
Réf.
0523
TOULOUSE (31500)
Au coeur du quartier à proximité des commerces, transports, écoles, dans une résidence intimiste de standing
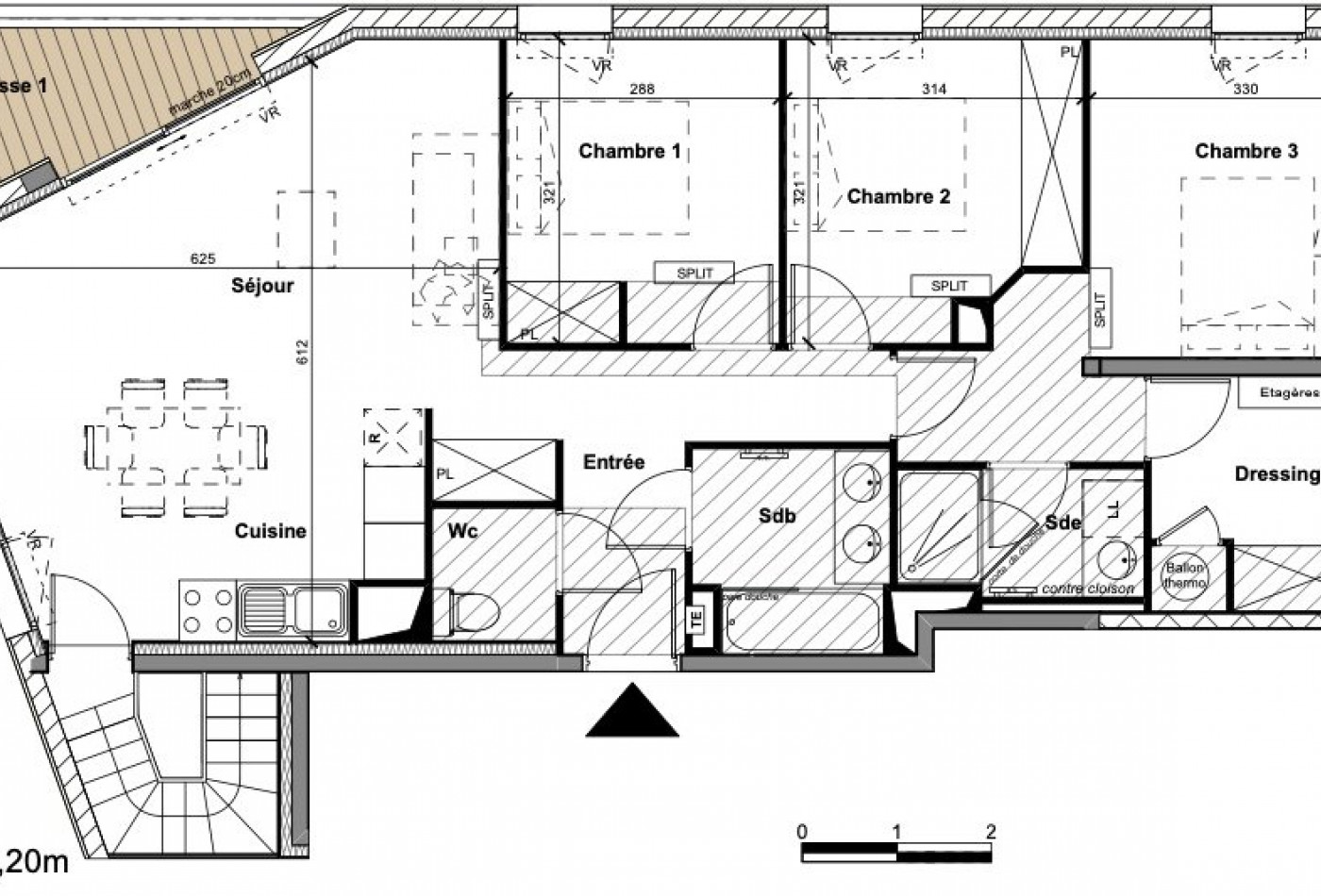
Au 3ème et dernier étage de la résidence, appartement d'exception T4 de 87 m2 comprenant: entrée avec placard, wc, sdb, deux chambres avec placards, 1 chambre avec sde et dressing ouvrant sur une terrasse de 6,43 m2, séjour/cuisine ouvrant sur une terrasse de 3 m2 et un accès au solarium de 60 m2
Emplacement de stationnement en sous-sol.
Parfait équilibre entre tranquilité et dynamisme urbain, la résidence bénéficie de prestations de qualité: pompe à chaleur, volets roulants électriques, cuisine aménagée, placards et sde aménagés, isolation phonique et thermique aux normes RE 2020, local vélos... Contactez-nous pour obtenir toutes les informations et connaitre les garanties de ce bien.
Bien soumis au statut juridique de la copropriété. Nb de lot :15. Charges annuelles de copropriété (Montant moyen annuel quote-part du budget prévisionnel vendeur) : 490.00 €.
* Honoraires charge vendeur.
















