| Basse saison | Moyenne saison | Haute saison |
|---|---|---|
| € | € | € |
AppartementRéf.
33053911
Réf.
837
NANTES (44100)
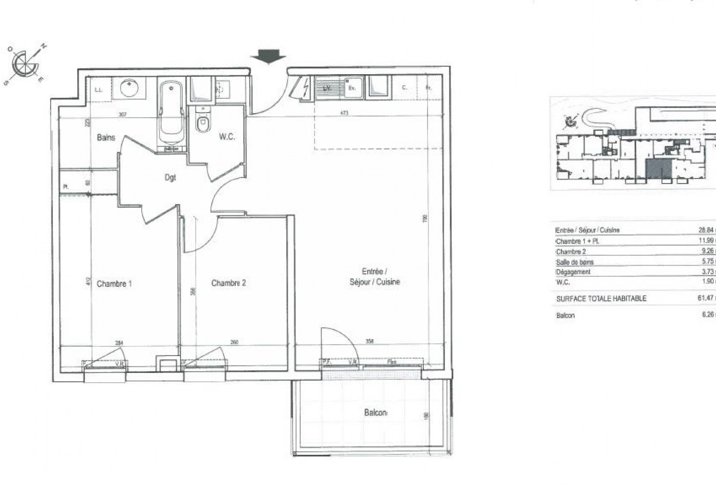
A NANTES, secteur Parc Procé, dans une Résidence récente de 2016 bien entretenue, avec ascenseur. venez découvrir ce bel appartement T3 d'environ 62 m² avec balcon exposé Sud-Est au RDC sur 4 étages.
Il est composé d'une entrée, d'un séjour avec cuisine ouverte donnant sur un balcon le tout très Lumineux.
De plus, vous disposez de deux chambres, d'une salle de bains et d'un WC séparé.
Ce bien est vendu avec une place de parking privative et sécurisée.
VENDU LIBRE MAXIMUN FIN AOUT 2026.
Charge copropriétés : 100 €/mois
Taxe foncières : 1162 € dont 145 € de TEOM
A VISITER SANS TARDER !!!
Les informations sur les risques auxquels ce bien est exposé sont disponibles sur le site Géorisques
Bien soumis au statut juridique de la copropriété. Nb de lot :82. Charges annuelles de copropriété (Montant moyen annuel quote-part du budget prévisionnel vendeur) : 1100.00 €.
* Honoraires charge vendeur.
Découvrez
nos biens similaires ...
À proximité
de ce bien ...
Découvrez
nos biens similaires ...






















