| Basse saison | Moyenne saison | Haute saison |
|---|---|---|
| € | € | € |
AppartementRéf.
311015470
Réf.
311015470
MURET (31600)
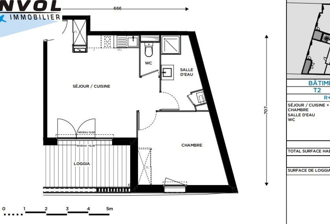
31600 MURET - Dans une résidences de 17 logements, appartement de type 2 au premier et dernier étage composé d'une entrée avec séjour cuisine (23,52 m²), une chambre (13,22 m²), une salle d'eau (6,12 m²) et toilette. Loggia 8,93 m². Chauffage Gaz Individuel. Une place de parking privative.
Surface habitable : 44,32 m² ; Surface Utile : 53,25 m²
Les informations sur les risques auxquels ce bien est exposé sont disponibles sur le site Géorisques. Pour organiser la découverte du bien, il faudra prévoir ensemble la signature électronique du bon de visite. Nous vous demanderons votre justificatif d'identité et votre adresse au préalable.
Les informations sur les risques auxquels ce bien est exposé sont disponibles sur le site Géorisques
* Honoraires charge vendeur.
Découvrez
nos biens similaires ...
À proximité
de ce bien ...
Découvrez
nos biens similaires ...












