| Basse saison | Moyenne saison | Haute saison |
|---|---|---|
| € | € | € |
AppartementRéf.
3466025370
Réf.
121
MONTPELLIER (34000)
Millénaire - Hôtel de Région
En co-exclusivité !
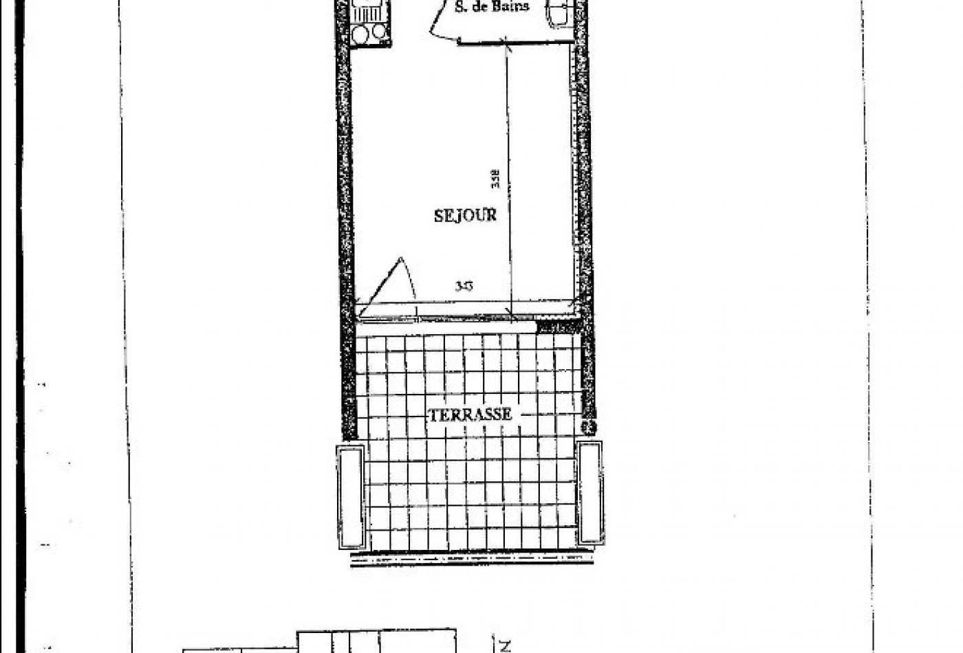
Dans une résidence impeccable (ravalement et parties communes faits) et dont nous sommes le syndic, bienvenue dans ce joli petit T1 en RdC de 18.3m².
En très bon état, exposé Est, vous y trouverez une entrée avec coin cuisine, salle d'eau avec WC, ainsi qu'une belle pièce principale donnant sur une grande terrasse de + de 10m² !
Un parking en sous-sol complète le tout. Aucuns travaux à prévoir.
Eau chaude et chauffage électriques individuels.
ACTUELLEMENT LOUE NON MEUBLE 440€ CC / mois. (Bail du 01.08.2023).
Honoraires inclus charge vendeur.
TF : ...€ | Ch. copro : 540€/an
Consommation énergétique : 230 kWh/m²/an Emission de gaz à effet de serre : 6 CO2/m²/an
Dossier complet et visites sur demande | contact@richtergroupeimmobilier.com
* Honoraires charge vendeur.


















