| Basse saison | Moyenne saison | Haute saison |
|---|---|---|
| € | € | € |
AppartementRéf.
345792868
Réf.
824-1
MONTPELLIER (34000)
Montpellier Rondelet
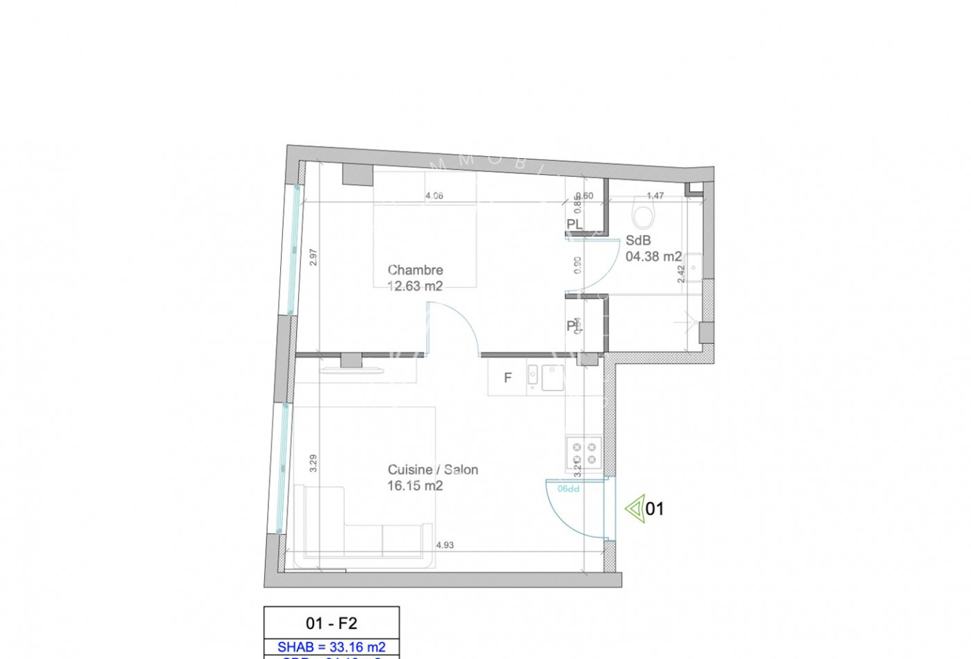
AO Immobilier vous propose à la vente cet appartement de type T2 en rez-de-chaussée, idéalement situé rue Ernest Michel à Montpellier, à proximité immédiate des commerces, des transports et du centre-ville.
Ce bien d’une surface habitable d’environ 33 m² se compose :
d’un séjour avec cuisine ouverte d’environ 16,15 m²,
d’une chambre confortable d’environ 12,63 m²,
d’une salle de bains d’environ 4,38 m²,
ainsi que de rangements intégrés.
L’appartement sera vendu entièrement rénové et clé en main, offrant des prestations modernes et prêtes à l’usage, idéal pour un investissement locatif, un pied-à-terre ou un premier achat.
Pour plus d’informations ou organiser une visite PRADAT MARC 06 23 80 89 59 Bien soumis au statut juridique de la Copropriété. Pas de procédure en cours.
Honoraires à la charge du vendeur
* Honoraires charge vendeur.







