| Basse saison | Moyenne saison | Haute saison |
|---|---|---|
| € | € | € |
AppartementRéf.
73028817
Réf.
VLNT/C1206
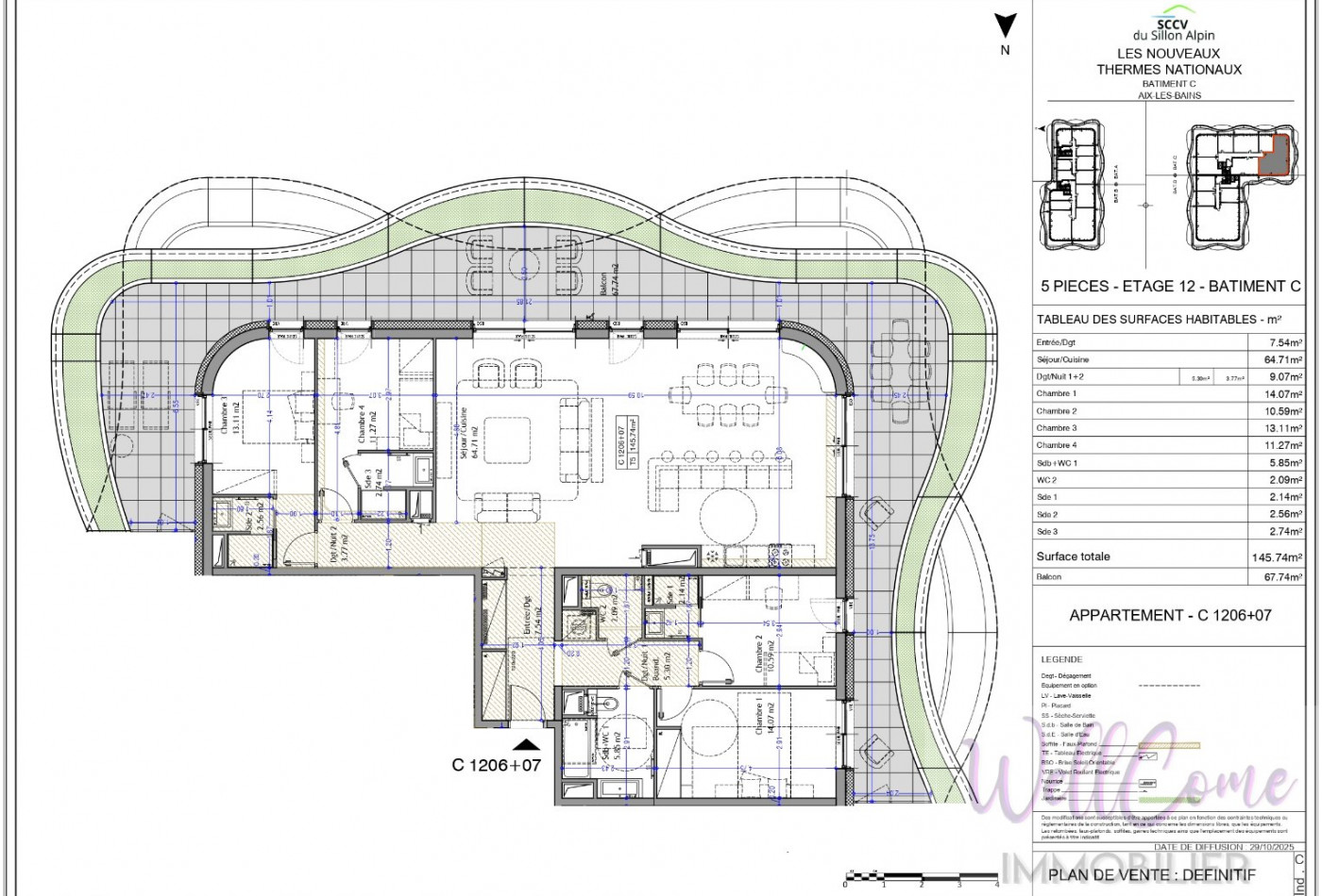
AIX LES BAINS (73100)
À Aix-les-Bains, au cœur de la prestigieuse résidence «Les Nouveaux Thermes» - Découvrez cet appartement T5 d’exception de 145,74 m² au 12ème étage du bâtiment SUD, offrant une triple exposition est/SUD/ouest
Cet appartement unique séduit par sa remarquable distribution intérieure : une entrée, une pièce de vie spectaculaire de près de 64,74 m² intégrant séjour et cuisine, baignée de lumière grâce à de larges baies vitrées s’ouvrant sur une terrasse végétalisée de 67,74 m² orientée Est–SUD–Ouest. Celle-ci offre des vues panoramiques à couper le souffle sur les massifs alpins et le lac du Bourget.
La partie nuit comprend : 3 chambres avec salle d’eau, une chambre, une salle de bains avec WC ainsi qu’un WC indépendant.
Vendu avec 1 box et une place de parking en sous-sol sécurisé.
La résidence « Les Nouveaux Thermes » se distingue par ses prestations haut de gamme et son engagement environnemental exemplaire : façades végétalisées sur plus de 3,5 km, plus de 15 000 plantes, toitures vertes, récupération des eaux pluviales et planchers chauffants/rafraîchissants par géothermie.
Contactez votre agence WellCome Immobilier pour réserver cet appartement d’exception parmi les premiers lots disponibles !
Frais de notaire réduits
Programme certifié RE2020 seuil 2022 & NF Habitat HQE
Livraison 1er trimestre 2029 Surface CARREZ : 145.74 m²
Bien soumis au statut juridique de la copropriété. Nb de lot :219.
* Honoraires charge vendeur.



















