| Basse saison | Moyenne saison | Haute saison |
|---|---|---|
| € | € | € |
AppartementRéf.
730281038
Réf.
VLNT/D1303
AIX LES BAINS (73100)
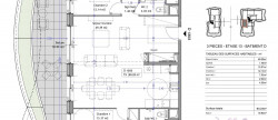
Appartement PREMIUM T3 de 90 m² en attique + box – « Les Nouveaux Thermes » à Aix-les-Bains
À Aix-les-Bains, en cœur de ville au sein de la prestigieuse résidence « Les Nouveaux Thermes », découvrez cet appartement 3 pièces de 90,23 m² en attique situé au 13ème étage côté Nord. Cet appartement de standing séduit par ses volumes généreux, sa luminosité et une distribution pensée pour un confort haut de gamme.
Description de l’appartement T3 :
-Séjour / Cuisine : 49,29 m²
-Dégagement / Nuit : 1,46 m²
-1 chambre avec salle d’eau : 16,53 m²
-1 chambre avec salle de bain et WC : 20,92 m²
-1 WC indépendant : 2,03 m²
L’appartement s’ouvre sur un balcon végétalisé de 18,93 m² orienté Nord.
1 box sécurisé en sous-sol inclus. Présence de locaux vélos et poussettes sécurisés.
Prestations haut de gamme : hauteur sous plafond 2,98 m, plancher chauffant et rafraîchissant par géothermie, menuiseries aluminium double vitrage, brise-soleil orientables (BSO) et volets roulants électriques. Personnalisation possible des finitions intérieures.
Résidence contemporaine à haute performance environnementale : façades et toitures végétalisées, récupération des eaux pluviales, chauffage et rafraîchissement par géothermie.
D’autres appartements T3 sont disponibles dans la résidence (de 68m² à 90m² au prix de 542 000 € à 1 139 000 €).
Pour plus d’informations et pour réserver votre futur appartement contactez votre agence WellCome Immobilier !
Livraison : 1er trimestre 2029
Frais de notaire réduits
Programme certifié RE2020 seuil 2022 & NF Habitat HQE
Bien soumis au statut juridique de la copropriété. Nb de lot :256.
* Honoraires charge vendeur.





















