| Basse saison | Moyenne saison | Haute saison |
|---|---|---|
| € | € | € |
Locaux d'activitéRéf.
76013793
Réf.
76013793
LES AUTHIEUX SUR LE PORT S (76520)
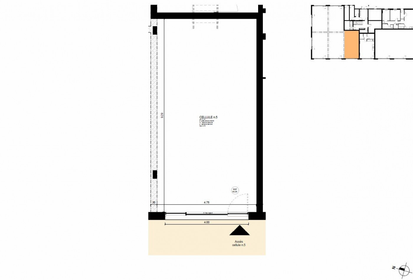
Habitat 76, bailleur social de Seine-Maritime, propose ces locaux d'activités d’environ 260m² dans la commune de LES AUTHIEUX SUR LE PORT SAINT OUEN en cours de construction avec une date de réception pour le premier trimestre 2027.
Situé dans le Sud de la ville de LES AUTHIEUX SUR LE PORT SAINT OUEN, dans un lotissement en cours de construction.
.
Visibilité sur la départementale D91.
Ces locaux sont structurables et modulables en fonction de vos besoins.
Les services habitat 76 :
- Aucun frais de dossier, ni d’honoraires d’agence
- Un suivi personnalisé de votre dossier
Pour toute information complémentaire, vous pouvez contacter le 02.76.67.01.85 ou par mail locauxdivers@habitat76.fr
Les informations sur les risques auxquels ce bien est exposé sont disponibles sur le site Géorisques
Découvrez
nos biens similaires ...
À proximité
de ce bien ...
Découvrez
nos biens similaires ...















